l’ilot Mazagran

30 logements sociaux pour Grand Lyon Habitat

 

Un projet de couture

Le projet s’implante en réponse directe avec la géométrie urbaine en présence : tracé de la ‘diagonale’ Félix Faure, immeubles voisins ; ceci pour plusieurs raisons :

• Le projet réalise une couture avec le tissu urbain environnant. Il s’installe perpendiculairement à l’ancien hôtel des Impôts (aujourd’hui Locaux Motiv’) et ménage un recul par rapport à ‘l’immeuble jaune’ à l’angle : ancienne usine de meuble Rambaudi dont la façade ornée de pilastres marque la place Mazagran de son identité.

• Cette implantation permet également de finaliser la composition de la place en créant un immeuble en fond de scène qui souligne la percée visuelle sur le bâtiment emblématique du Citroën et les collines de St Foy-les Lyon (percée élargie à 12m et 16m). Le local d’activité et la salle polyvalente à rez-de-chaussée s’adressent pleinement à la place et l’animent de leur activité, invitant à repenser le carrefour en présence dans la droite ligne des politiques actuelles d’apaisement de l’espace public et de végétalisation des rues.

• Par cette orientation, les logements profitent des meilleures orientations et prospects, limitant les masques solaires sur les constructions alentours. Le bâtiment A concourt à créer des logements traversants est/ouest, comme à ouvrir des vues entre la place Mazagran et le coeur d’ilôt planté. Son implantation permet au même titre de limiter le masque solaire sur la rue Jangot. Le bâtiment B s’ouvre au sud comme sur la place Mazagran. Son recul permet d’élargir la rue du Capitaine Robert Cluzan et d’y faire entrer le soleil.
Le fonctionnement de la résidence participe à la mise en scène de la ‘diagonale’ par l’aménagement d’une venelle privée (sous contrôle d’accès) qui organise les accès aux halls. Cette venelle pourra se prolonger par la suite sur le tènement mitoyen.

 

Volumétrie

A la Guillotière, les angles de rue font souvent l’objet d’un traitement architectural singulier et notamment quand ceux-ci s’adressent à une place publique. Les rues ordinaires sont traitées avec moins de singularité mais laissent lire les façades pignons par un jeu d’épanelage varié.

• Le projet s’organise autour de la diagonale, en deux bâtiments dont la volumétrie répond à une situation singulière dans l’îlot. Le bâtiment A, en angle sur la place Mazagran possède un statut privilégié. Nous lui avons donné une plus grande hauteur associée à un traitement architectural spécifique lié à ce statut : rez-de-chaussée double, traitement des baies plus détaillé. Le bâtiment B, rue du Capitaine Robert Cluzan, possède une position plus modeste tout en dessinant une manière de ‘proue’ sur la diagonale et la place. Nous l’avons dessiné avec une hauteur plus ordinaire du R+3 au R+5, en continuité avec le tissu en présence. Le bâtiment A crée un joint creux sur la rue Jangot et le bâtiment B se positionne en retrait de la rue du capitaine Robert Cluzan, afin de préserver la lecture des pignons des immeubles alentours et de répondre à l’étroitesse des rues. Dans un cas comme dans l’autre, les hauteurs des immeubles varient au sein d’une composition architecturale cohérente, à l’image des cités jardins lyonnaises ou des ensembles de l’architecte Tony Garnier. Nous avons privilégié des immeubles d’une finesse analogue au bâti existant (10-11 mètres) au service de la qualité des logements. L’ensemble assume une certaine verticalité qui sied tout à fait à la position singulière du projet dans la ville et répond à l’édifice voisin en R+8, sans toutefois l’outrepasser.

• Les vides ménagés sont au service de deux types de végétalisation. Le coeur d’îlot accueille une végétation dense, foisonnante et étagée afin de créer un îlot de fraicheur.
L’espace public sur la rue se voit restitué plus de végétation que préconisé afin de planter des arbres au devant des immeubles, accompagnant le bâti avec cette idée que toute densification doit s’accompagner d’une intensification végétale.

 

Langage architectural

L’enjeu est ici de créer une architecture au dialecte ‘local’, en continuité des édifices en présence. Nous souhaitons nous inscrire dans une douce contemporanéité, parier sur la qualité de la ville ordinaire, sortir à tout prix de l’architecture générique en renouvelant de manière douce et délicate l’identité architecturale des lieux. Cela passe par la projection d’immeubles simples, ré-inventant des archétypes au moyen d’un sous-bassement en pierre, d’étages courants, de fenêtres et d’un attique. Cela passe également par la création sur le coeur d’îlot de structures rapportées, formant balcons/terrasses, répondant à l’enjeu contemporain d’offrir des prolongements extérieurs au logement tout en limitant les ponts thermiques.

• Le projet porte pour cela une attention particulière à la fenêtre, réinterprétant un canon lyonnais. Ces dernières possèdent des tailles différentes en fonction de leur usage et sont pensées en corrélation entre l’espace habité à l’intérieur et la façade. Elles sont généralement à deux battants, généreuses dans leur proportion et posées sur une allège basse à 45cm du sol afin de favoriser leur habitabilité. Des cadres dessinées et des jambages en biais permettent à davantage de lumière d’y pénétrer. Un appui béton associé à un garde corps en serrurerie leur donne une parfaite pérennité. L’occultation est réglée au moyen de brise-soleil orientables réinterprétant les jalousies locales.

• Le projet utilise des ornements discrets au service de la construction. Le sous-bassement réalisé en pierre donne au rez-de-chaussée une pérennité à l’épreuve du temps. Les étages sont construits en blocs de chanvre enduits à la chaux, lesquels feront l’objet d’un choix de teinte et de finition en lien étroit avec l’architecte des bâtiments de France. Les façades sont différenciées selon qu’elles donnent sur le coeur d’îlot, sur les rues ou sur la place. Les corniches comme le courronement de l’édifice permettent d’éloigner l’eau de la façade, tout en assurant un rôle structurel. Le projet porte également un soin particulier aux éléments d’architecture au service de l’usage. Les garde corps sont occultant ou non en fonction de leur position. Le bâtiment donne une certaine noblesse au porche et aux escaliers, afin d’inciter à l’usage des lieux communs, en soulignant le bonheur qu’il y a à les pratiquer. Les escaliers sont donc ouverts, ce qui favorise généralement leur appropriation.

En résumé, le projet est fait de deux bâtiments réalisés selon une même écriture architecturale mais procédant à des variations en réponse au contexte proche. L’enjeu de ces variations est qu’elles soient subtiles, afin qu’elles participent néanmoins à un sentiment d’unité.

 

Fonctionnement

L’objectif est de favoriser la possibilité d’un voisinage heureux en multipliant les échelles de voisinage, en donnant de la qualité aux cheminements et aux seuils comme en offrant aux logements l’intimité nécessaire d’un ‘chez soi’.

• Dans cette perspective, la diagonale est traitée comme une allée privée et commune à l’îlot, desservant les différentes parcelles. Cet accès unique permet ensuite de desservir chacun des bâtiments A et B. Les locaux communs (vélos, poubelles, gardiens, poussettes) sont à ce stade mutualisés au sein du bâtiment A. Les boites à lettres sont placées dans chacun des immeubles. Au rez-de-chaussée se tiennent l’espace associatif et un espace d’activité. L’espace associatif est aujourd’hui organisé autour d’un patio d’entrée, proposant deux salles, l’une ouverte sur la place Mazagran et l’autre plus intimiste, afin de multiplier les possibilités d’usages. Le local d’activité ouvre quant à lui sur la place Mazagran afin de favoriser son animation. Nous souhaitons cependant souligner à ce stade la possibilité de mutabilité des programmes dans l’attente d’une définition plus poussée des attendus concernant la salle associative.

• La distribution privilégie la marche à pied. Les escaliers extérieurs offrent des vues insolites. Les paliers sont éclairés naturellement et desservent au maximum trois logements aux typologies variées afin de garantir une mixité sur le palier.

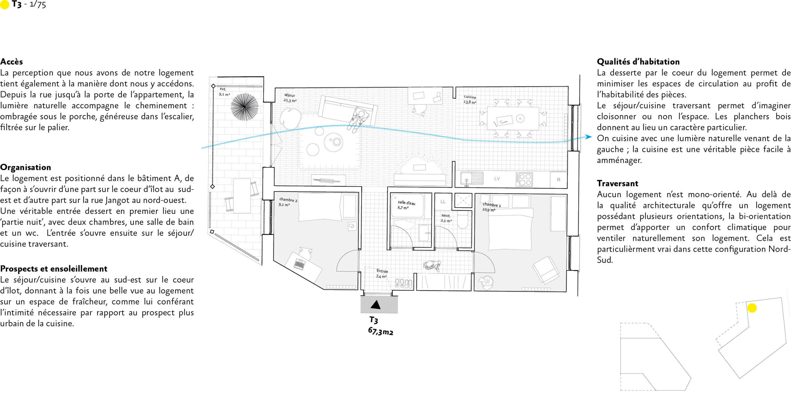
• 100% des logements sont traversants, bi ou tri-orientés et ce notamment au sein même de l’espace de jour. Ils offrent des vues vers le loint ain, des orientations variées et des espaces extérieurs multiples (loggias, balcons, terrasses), lesquelles permettent des appropriations différenciées. Nous avons souhaité permettre une mutabilité des espaces. Les séjours-cuisines peuvent être ouverts, ou cloisonnés. Enfin, les hauteurs sous plafonds sont différentes selon les étages, variant de 2,80m à 2,60m afin de donner davantage de lumière aux étages inférieurs.

lieu
Lyon 7 / Ilot Mazagran
maîtrise d'oeuvre
commune (architecte), Indigène (paysage), Vessière (structure), Epco (fluides, QE), GEC Rhône Alpes (économiste), Génie Acoustique (acousticien), Eurostudio (BIM), Arpege (OPC)
maîtrise d'ouvrage
Grand Lyon Habitat
avancement
APS
programme
30 logements sociaux, locaux d'activités et salle communale
surface
2850 m2
coût
4,5 M €